Sold

390 Tunnel Ridge Road, Mooloolah Valley

SOLD

4 4 2 205,100 m2

50 Acres...1.2 km Road Frontage...Ocean Views

This amazing piece of real estate is situated on the panoramic escarpment between Mooloolah Valley & Landsborough, taking in beautiful coastal and hinterland views. This property is in a premium east side location.

Opportunity for 2 Homes on 1 Property! Power connected to the second ridge with a 24m x 10m concrete slab and easy access entry (subject to council approvals). Long range ocean views, complete privacy, great opportunity!

Don't hesitate - bring the family (the whole family) together and purchase this magnificent 50 acre property! Just 1 minuite to the heart of the Mooloolah Valley village and only 15 minutes to the beautiful beaches of Caloundra & just 1 hour drive to Brisbane.

- 50 Acres with 1.2 km road frontage + town water
- Internal road linking the first ridge (main house) to the second ridge (slab for second dwelling)
- 1 minute to the heart of town
- 3 cleared ridges 300 metres apart on the property
- Solid H block core filled home built on solid rock
- 6 foot fencing 200 metres around the home with security gate
- Spacious kitchen with ceasarstone benches and Mango timber island bench
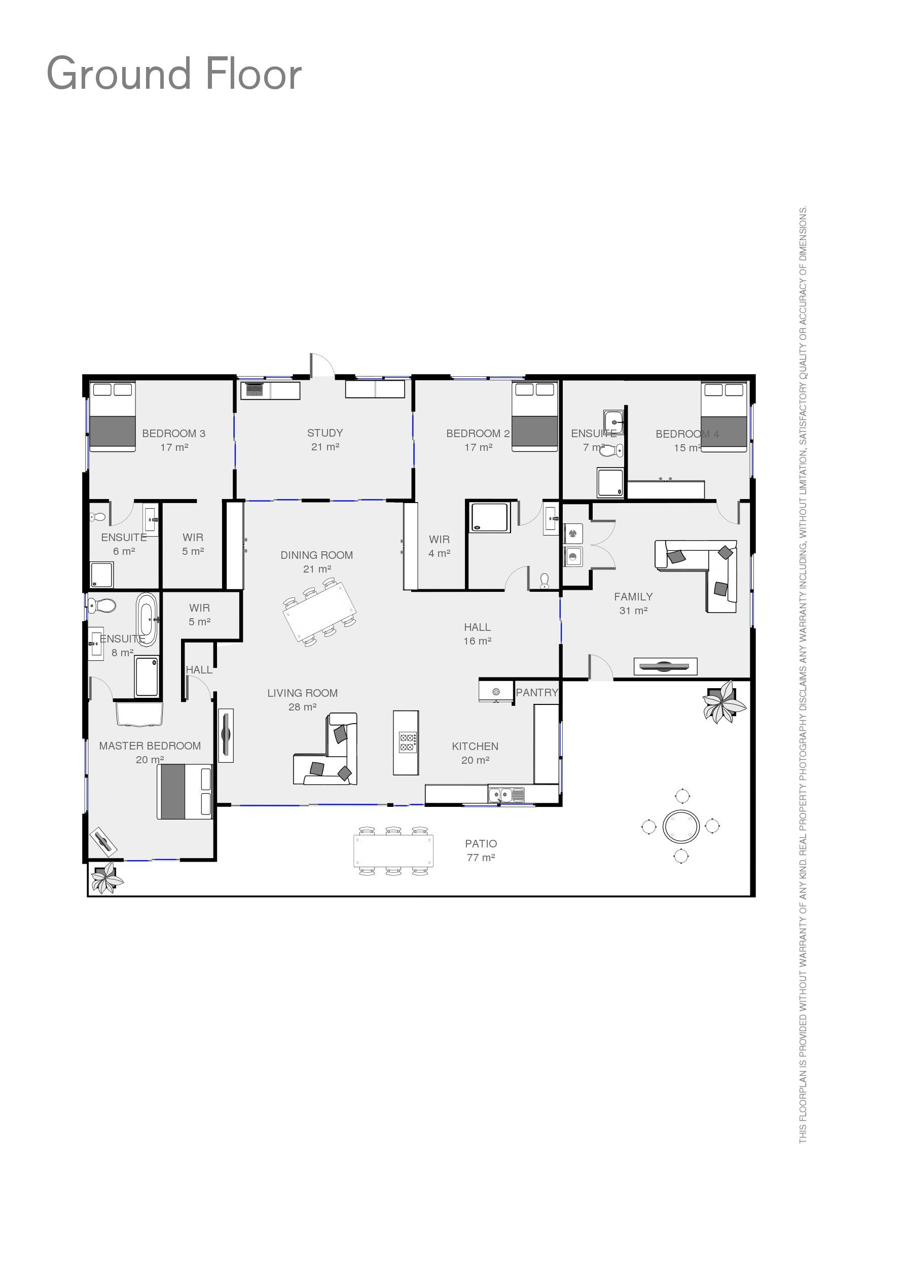
- 3 King size bedrooms with ensuites & walk in robes
- 4th bedroom with ensuite and lounge room
- 3 living areas - 4metre wide veranda
- Eastern aspect with ocean views
- Open plan living / Beautiful natural light
- Absolute privacy, low maintenance yard
- Town location

Features

Balcony
4 4 2 205,100 m2

Details

Address 390 Tunnel Ridge Road, Mooloolah Valley
Price SOLD
Property Type Residential
Property ID 265
Category House
Land Area 205,100 m2
Floor Area 278.70 m2

Tools

Share This Property